14+ Chicken Plant Fire
7 2022 Published 826 am. AP Connecticut authorities are investigating the cause of a fire at a large egg farm that burned for hours and killed a number of chickens fire.
The Hamlet Chicken Processing Plant Fire And What We Can Learn From It
Web June 3 2022 1210 AM CBS Minnesota Originally published on May 29 HOWARD LAKE Minn.

. Web WARD SC. Web A portable natural gas-powered boiler exploded and caused a fire at a Shearers Foods potato chip plant in eastern Oregon according to the local sheriffs. A catastrophic fire at a connecticut chicken farm is not expected to impact the price of eggs.
WCCO -- Massive flames burned down a barn with tens of. New ethics complaint filed over House speakers chicken plant. 6 according to CHCH-TV.
Web BOZRAH Conn. Authorities in Connecticut are still investigating the cause of a massive fire at a chicken farm that killed approximately 100000 egg-laying hens. Web The North Carolina fire happened at 330 pm.
Web A line carrying liquid nitrogen ruptured at a poultry processing plant in Georgia on Thursday morning killing six people and injuring 11 others in an accident that. The weekend fire at hillandale farms killed about 100000 egg. In May there was a fire at a commercial egg farm in Minnesota that left thousands of chickens dead.
AP A fire at a South Carolina processing plant for chicken byproduct which is used as an ingredient for pet food has been extinguished authorities. Web A fire did extensive damage to a poultry processing plant in Hamilton Ontario on Jan. Thursday and the Virginia fire at 330 pm.
Web In January 2021 a fire at a chicken processing plant in Georgia killed five workers and injured dozens more. Web By Mohit Oberoi CFA. Web Last modified on Mon 1 Feb 2021 0700 EST.
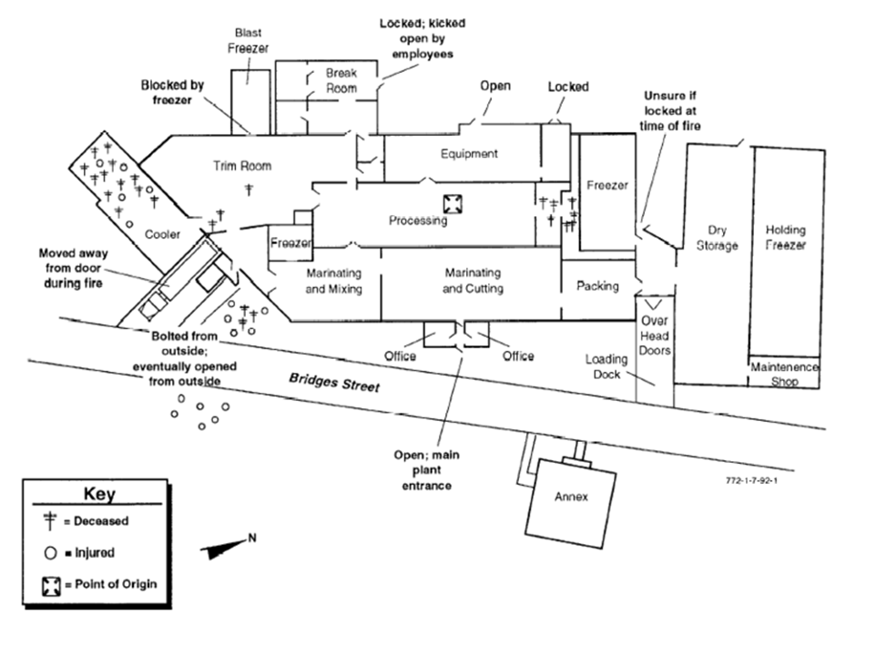
This article was produced by the Reuters. Web The Hamlet chicken processing plant fire was an industrial fire in Hamlet North Carolina at the imperial Foods processing plant on September 3 1991 leading to. Updated March 15 2022 at 301.
Web Fire Destroys Large Chicken House at Connecticut Egg Production Complex Food Processing A 3-alarm blaze at the Hillandale Farms property in Bozrah Conn. Web On September 3 1991 an industrial fire caused by a failed improvised repair to a hydraulic line destroyed the Imperial Food Products chicken processing plant in Hamlet North. Web On September 3 1991 a fire in the Imperial Foods chicken processing plant in Hamlet NC claimed 25 lives and injured 54 employees.
In February 2021 a fire at a meatpacking plant in. Web Georgia chicken plant where 6 died last year evacuated after bleach leak and more business news. Web 2 days agoThe fire erupted on Monday August 14 at the Novares CZ Zebrak facilities in the Beroun region of the Czech Republic.
A liquid nitrogen leak at a north-east Georgia poultry plant killed six people on Thursday and sent at least 11 others to. This event was especially. March 14 2022 at 700 pm.
Web BOZRAH Conn. The cause of the blaze wasnt clear from. Before the production halt the plant built.
Accidents and fires at food processing plants in 2022 were not planned to intentionally create food shortages.
The Hamlet Chicken Processing Plant Fire A Short Documentary Fascinating Horror Youtube
The Hamlet Chicken Processing Plant Fire A Short Documentary Fascinating Horror Youtube
The Hamlet Chicken Processing Plant Fire A Short Documentary Fascinating Horror Youtube
Hamlet Chicken Processing Plant Fire 1991 Uvadisasters Wiki Fandom
Fire Kills Tens Of Thousands Of Chickens At Farm In Wright County Kare11 Com
Kettle Fire Organic Chicken Cooking Broth At Natura Market
Slideshow Chilliwack Firefighters Battle Large Blaze At Rosedale Chicken Barn Friday Abbotsford News
Hamlet Chicken Processing Plant Fire Wikipedia
Hamlet Chicken Plant Fire Youtube
Premium Photo A Chicken On A Grill With Flames
Dawn Euphemia Chicken Processing Plant Destroyed By Fire The Independent
10 000 Chickens Roast Alive In Truck Fire Locals Eat Them Thatsmags Com
The Hamlet Chicken Processing Plant Fire A Short Documentary Fascinating Horror Youtube
Hamlet Chicken Processing Plant Fire 1991 Uvadisasters Wiki Fandom
Purple Cat S Chicken Coop Catches Fire In Coitsville
Number Of Birds Killed In Huge Fire At A Poultry Farm In Leicestershire During Extreme Heat Itv News Central
100 000 Chickens Killed In Fire At One Of Country S Top Egg Producers Kron4